HENRY STREET GARDEN CENTRE
A family owned and run business originally specialising in growing roses, in 2011 wanted to create an in-house café to complement their expanding business.
Having been involved in the design and creation of the original 200-seater café and self-service counters, working in conjunction with Vision Commercial Catering and JQ Contract shop fitters.
It has been nice to be asked back to help with their latest expansion plans.
Henry Street are now involved in a new expansion programme to add further buildings to house a new 300-seater restaurant with even more retail space.
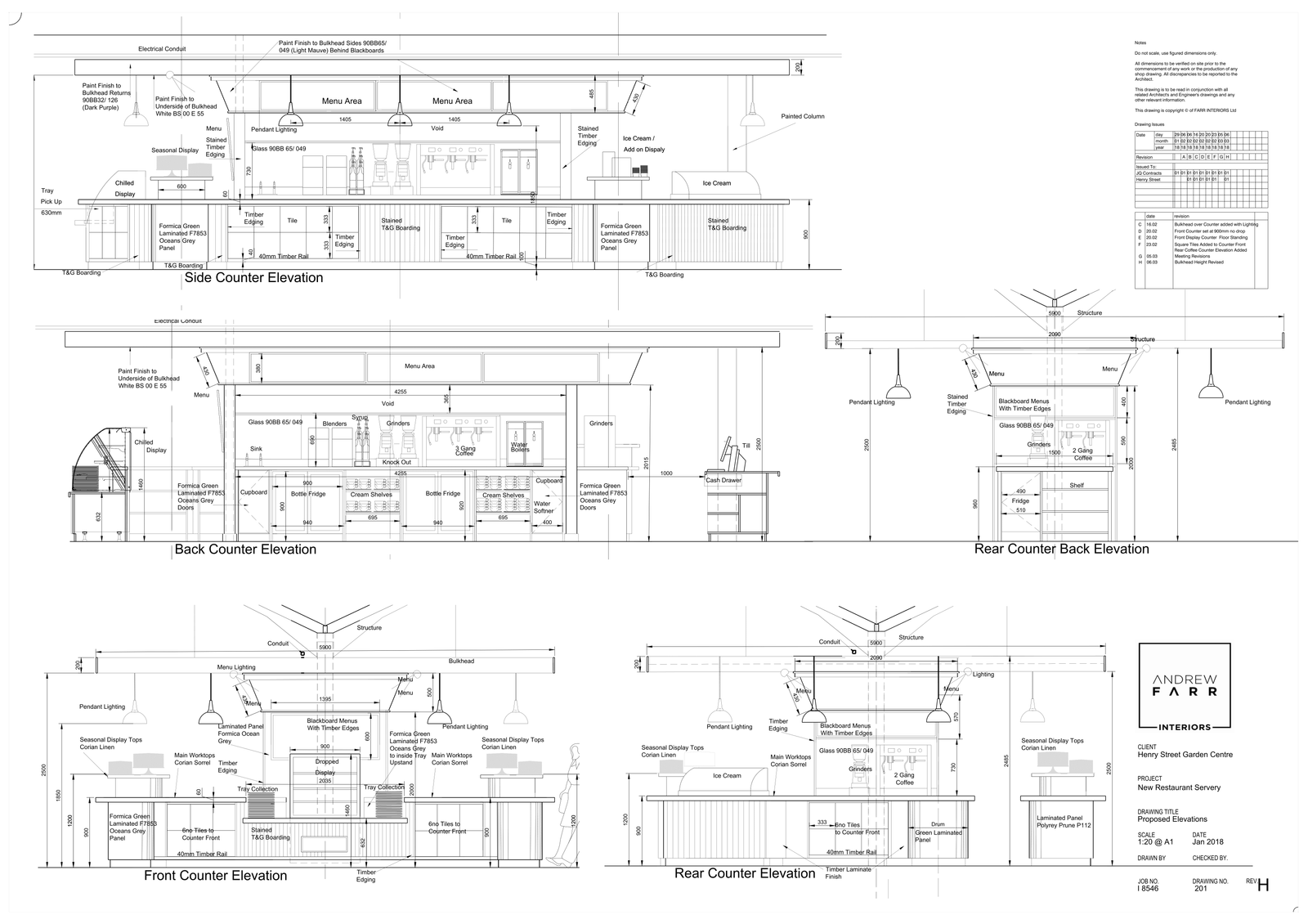
Working again in conjunction with JQ Contracts, and closely with Peter and Tim Gould of Henry Street, we helped design and develop the new food and drink counters.
The new building has been developed so that the public travel through the existing retail sales, to now arrive at the front of a new very large open plan metal framed building with views on to the outdoor planting areas.
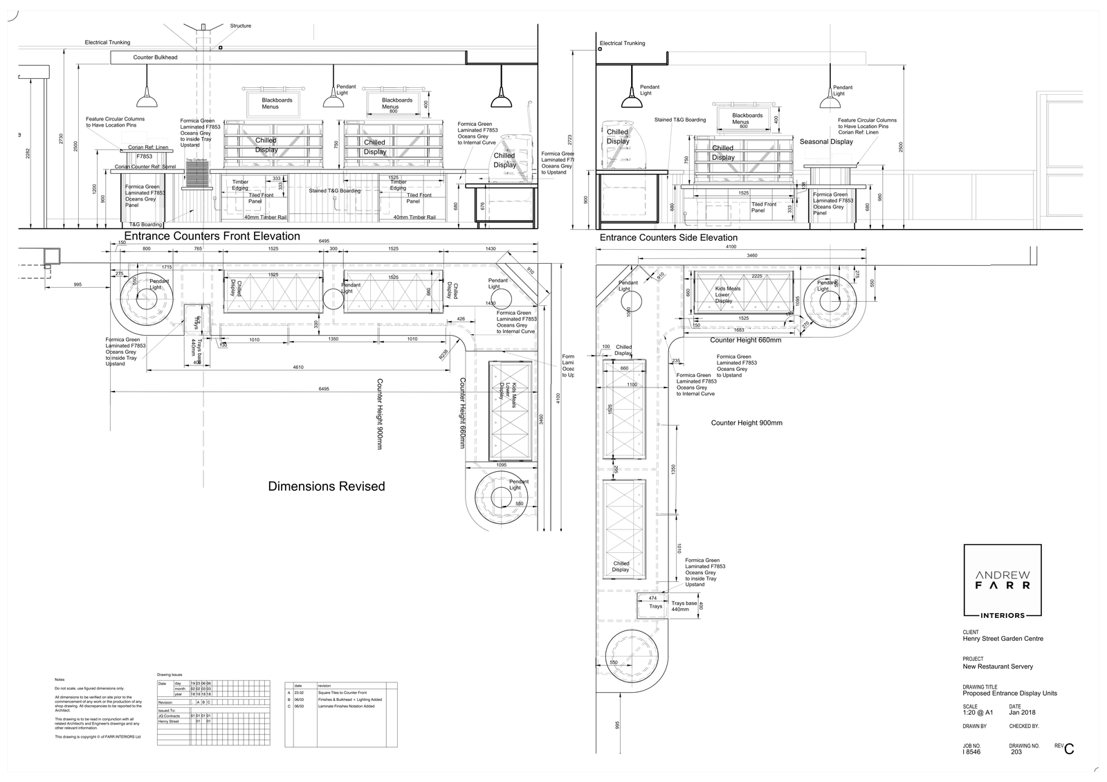
It was decided that the new counter would be split into two separate areas, the first being a fixed counter with three chilled displays, one of which would hold a selection of children’s meals and a tray pick up point.
The second counter was to be a centrally located double-sided drinks and meal ordering station, with a front chilled display counter and additional tray pick up points. This was to encourage the public to use both sides of the counter to reduce waiting at key busy times throughout the day.
Both Peter & Tim had experience of long queues forming by customers ordering meals and waiting for coffees & beverages to be handed over and wanted to help design this out of the new counter.
At each corner of the counter to break up the long counter runs raised feature display drums with contrast Corian tops were provided where speciality cakes and seasons products can be displayed. The menus were set at high level above the rear counter drinks equipment and illuminated by recessed LED fittings and a floating bulkhead with additional pendant lights was designed to finish of the counter scheme as the new building had a high roof height.
We all look forward to the opening of the new restaurant and no doubt more photos of the finished scheme will be posted soon !
INITIAL SITE






SITE REDEVELOPMENT



